間隙式均化庫
丁寶勤 13906276368(技術)
電話:0513-88400999 傳真:0513-88400998 郵箱:jszk@vip.163.com
一、 概述
間隙式均化庫是分區均化的一種,均化效果高,適用生料成份波動小,且配料設備不夠準確的生料制備系統,出磨生料入庫裝到適當高度后,即通過分配閥或閥門按時間順序輪流充氣攪拌、取樣化驗、校正、再攪拌,直至生料成分合格出庫,其特點調配操作靈活,均化效果好。這種庫的均化值通達1-12,電耗0.12-0.25kwh/t。
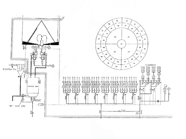
二、示意圖

三、技術參數表
均化庫直徑 設 備 | Φ6000 | Φ8000 | |||||
序號 | 名稱 | 規格 | 數量 | 備注 | 規格 | 數量 | 備注 |
1 | 扁袋除塵器 | SD42 | 1臺 |
| SD52 | 1臺 |
|
2 | 六嘴生料分配器 | Φ800 | 1臺 | 能力80T/H | Φ1200 | 1臺 | 能力120T/H |
3 | 空氣輸送斜槽 | B315 | 1臺 | 能力60T/H | B315 | 1臺 | 能力60T/H |
4 | 量倉孔門 | Φ250 | 1臺 |
| Φ250 | 1臺 |
|
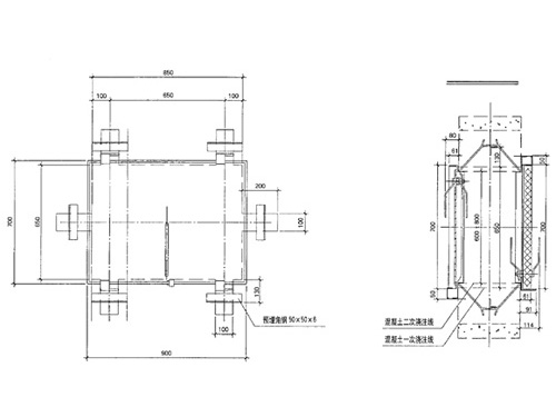
5 | 檢驗入孔門 | 700×800 | 1臺 |
| 700×800 | 1臺 |
|
6 | 庫側入孔門 | 600×800 | 1臺 |
| 600×800 | 1臺 |
|
7 | 充氣箱 |
| 1套 |
|
| 1套 |
|
8 | 手動單嘴庫底卸料器 | Φ150 | 1臺 | 能力:80-100T/H | Φ100 | 2臺 | 能力:80-100T/H |
9 | 螺旋輸送機 | LS315 | 1臺 | 工藝定 | LS400 | 1臺 | 工藝定 |
10 | 單四嘴回轉式空氣分配器(氣動<電動>O型球閥) | Φ150 | 1臺/4只 |
| Φ500 | 1臺 | 配用功率1.5KW |
上一頁:連續式均化庫
下一頁:生料分配器
















