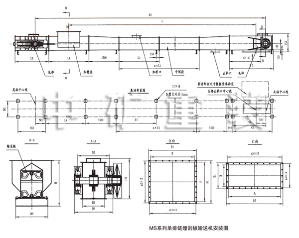
MS單排鏈埋刮板輸送機
周先生 13906278080 丁寶勤 13906276368
電話:0513-88400999 傳真:0513-88400998 郵箱:jszk@vip.163.com
MS單排鏈埋刮板輸送機的工作原理及特點
MS單排鏈埋刮板輸送機是一種在封閉的矩形斷面的殼體內,鏈條采用模鍛或合金板材,并經過特殊熱處理,強度高、耐磨損、壽命長。借助于運動著的刮板鏈條連續輸送散裝物料的運輸設備。在水平輸送時,物料受到刮板鏈條在運動方向的壓力,及物料自身重量的作用在物料間產生了內摩擦力。這種摩擦力保證了料層之間的穩定狀態,并能克服物料在機槽內的移動而產生的外摩擦阻力,使物料形成整體料流而被輸送。
埋刮板輸送機結構簡單、重量輕、體積小,耐高溫、密封性強、安裝維修方便。它的工藝布置靈活,可以多點卸料及實現定量輸送,輸送距離達80m以上。由于殼體是封閉的,在輸送有毒、易飛揚、易爆及高溫物料時,對改善工人的操作條件和防止環境污染等方面都有優勢。目前埋刮板輸送機已廣泛用于水泥、冶金、交通、建材、化工、糧食、電力等行業。


· 結構緊湊,密封性好,在機頭處設置懸鏈,可有效防止鏈條的熱伸長產生的卡鏈;
· 鏈條采用合金鋼模鍛,并經熱處理,強度高,更換方便,良好的自鎖性,無松脫現象;
· 鏈速低,輸送效率高,耐磨損,使用壽命長;
· 采用模塊化設計,現場安裝、維護方便;
· 具有防過載保護,防斷鏈保護。
主要技術參數

上一頁:MX雙排鏈埋刮板輸送機
下一頁:TD型斗式提升機

















